Domek letniskowy IBIZA2 5.0x7.0m 88mm

Gwarantujemy
Najwyższa jakość
Możliwość zakupu na raty
Możliwość dostosowania produktu
Możliwość montażu

IBIZA2 5,0x7,0 balik 88 mm – wersja premium o podwyższonym standardzie całorocznym

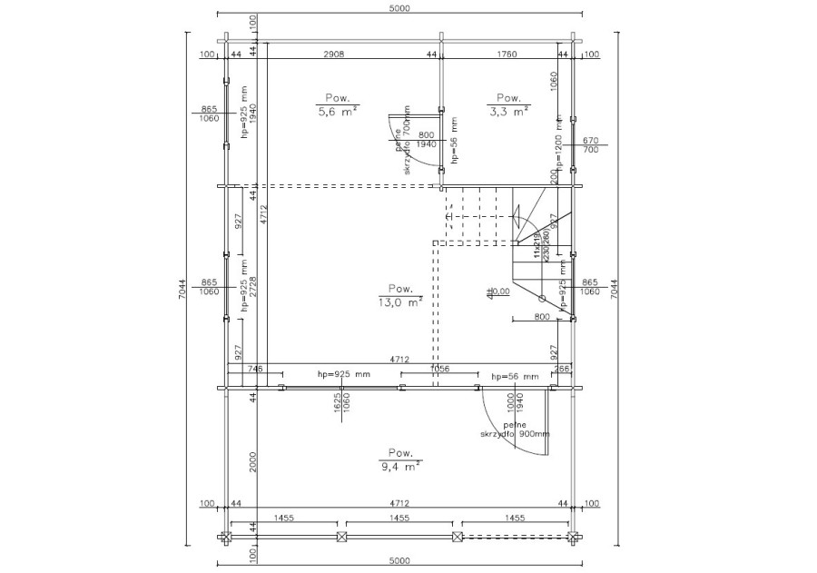
Domek letniskowy IBIZA2 5,0 × 7,0 m w wariancie z balika 88 mm to najwyższy standard konstrukcyjny w tej serii. Łączna powierzchnia 49,4 m² (22,0 m² parter + 27,4 m² poddasze) oraz taras 9,4 m² tworzą komfortową, pełnowartościową przestrzeń wypoczynkową. To model dla wymagających klientów, którzy oczekują solidnej, masywnej bryły i parametrów zbliżonych do budownictwa całorocznego. Wysokość w szczycie 4,96 m dodatkowo podkreśla przestronność i reprezentacyjny charakter domku.

Bale 88 mm – maksymalna izolacja i trwałość konstrukcji

Ściany z litego, czterostronnie struganego drewna skandynawskiego o grubości 88 mm gwarantują bardzo wysoką stabilność, doskonałą izolację termiczną oraz zwiększoną odporność na odkształcenia. W połączeniu z podłogą 28 mm, deską dachową 28 mm oraz kątem nachylenia dachu 30°, konstrukcja tworzy trwały, odporny na warunki atmosferyczne budynek. Grubszy bal to również większa bezwładność cieplna, co przekłada się na komfort użytkowania w chłodniejszych miesiącach. To rozwiązanie dla osób, które traktują domek jako realną alternatywę dla tradycyjnego budynku rekreacyjnego.

Wysokiej klasy stolarka i doświetlenie wnętrza

Wersja 88 mm została wyposażona w 7 okien z szybą zespoloną w technologii ECO-ISO, co zapewnia wysoki komfort cieplny i akustyczny. Duże przeszklenia (5 × 85×108 cm oraz 2 × 67×70 cm) oraz solidne drzwi zewnętrzne 90 × 194 cm podnoszą standard użytkowania i estetykę budynku. Trzy drzwi wewnętrzne 70 × 194 cm umożliwiają funkcjonalny podział przestrzeni. To stolarka, która odpowiada klasie premium całej konstrukcji.

Komfortowa przestrzeń z poddaszem i zabiegowymi schodami

Wewnętrzny wymiar 4,71 × 6,75 m zapewnia ustawność pomieszczeń, a poddasze o powierzchni 27,4 m² znacząco zwiększa funkcjonalność domku. Schody zabiegowe pozwalają optymalnie wykorzystać przestrzeń bez utraty komfortu komunikacji. Wypust dachu 0,40 m chroni elewację, a powierzchnia dachu 51 m² zapewnia solidne pokrycie (pokrycie jako opcja dodatkowa). To model zaprojektowany z myślą o długoterminowym użytkowaniu i najwyższym komforcie.

Dlaczego warto wybrać wariant z balika 88mm?

IBIZA2 w wariancie 88 mm to wybór dla osób, które nie chcą kompromisów – oczekują maksymalnej trwałości, wysokiego komfortu cieplnego i konstrukcji przygotowanej na wieloletnie, intensywne użytkowanie. To domek, który realnie zwiększa funkcjonalność działki i może pełnić rolę przestrzeni rekreacyjnej, gościnnej, a nawet sezonowego domu całorocznego po odpowiednim doposażeniu. Wersja 88 mm to inwestycja w jakość, stabilność i prestiż - rozwiązanie dla wymagających klientów, którzy chcą mieć najlepszy wariant w swojej kategorii. Model IBIZA2 spełnia wymagania budynku do 35 m² powierzchni zabudowy, dzięki czemu jego realizacja odbywa się w uproszczonej procedurze – wyłącznie na zgłoszenie, bez konieczności uzyskiwania pozwolenia na budowę.

Domek letniskowy jest przeznaczony do samodzielnego montażu lub… możesz zlecić go nam. O nic nie musisz się martwić! Nasi fachowcy zajmą się montażem od A do Z.

Domek letniskowy SAPI15

Najwyższa jakość i solidność materiałów

  • naturalne surowce - wysokogatunkowy naturalny Nordic świerk;
  • grubość ścian (88mm) zapewnia dobrą stabilność konstrukcji.
Domek letniskowy SAPI15

Estetyczne i funkcjonalne okna i drzwi

  • stylowe, przeszklone okna i drzwi stanowią oryginalne uzupełnienie domku;
  • podwójne szyby w drzwiach i oknach - to gwarancja dobrej izolacji akustycznej.
Domek letniskowy SAPI15

Budowa dachu

  • spadzisty dach umożliwia swobodny odpływ wody deszczowej;
  • gont dachu - na życzenie Klienta dostarczamy dach z dodatkowym zabezpieczeniem w postaci solidnego, 20-letniego gontu;
  • rynny - na życzenie Klienta domek dach domku może zostać wyposażony w system rynien, odprowadzających deszcz.
Domek letniskowy SAPI15

Prosty montaż

  • samodzielny - dzięki załączonej instrukcji indywidualny montaż nie sprawia trudności;
  • profesjonalny - na życzenie Klienta zapewniamy fachowy montaż w wykonaniu doświadczonej ekipy z własnym, kompleksowym zapleczem narzędziowym.
Specyfikacja techniczna produktu
Materiał
naturalny Nordic świerk/sosna
Domek letniskowy IBIZA2 5.0x7.0m 88mm
Rozmiar zewnętrzny (m) 5,0x7,04
Rozmiar zewnętrzny (m)
5,0x7,04
Rozmiar wewnętrzny (m) 4,62x6,66
Rozmiar wewnętrzny (m)
4,62x6,66
Grubość ściany (mm) 88
Grubość ściany (mm)
88
Powierzchnia domku (m2) 22,0 plus 27,4 razem 49,4
Powierzchnia domku (m2)
22,0 plus 27,4 razem 49,4
Powierzchnia dachu (m2) 51,0
Powierzchnia dachu (m2)
51,0
Wypust dachu (m) 0,40
Wypust dachu (m)
0,40
Wysokość ściany bocznej (m) 3,38
Wysokość ściany bocznej (m)
3,38
Wysokość w szczycie (m) 4,96
Wysokość w szczycie (m)
4,96
Rozmiar zewnętrzny (m)
5,0x7,04
Rozmiar wewnętrzny (m)
4,62x6,66
Materiał produktu
naturalny Nordic świerk/sosna
Grubość ściany (mm)
88
Powierzchnia domku (m2)
22,0 plus 27,4 razem 49,4
Powierzchnia dachu (m2)
51,0
Wypust dachu (m)
0,40
Deski dachowe (mm)
19
Pokrycia dachu
brak (opcja dodatkowa)
Kąt dachu
30 stopni
Wysokość ściany bocznej (m)
3,38
Wysokość w szczycie (m)
4,96
Podłoga (mm)
28
Podwaliny (legary)
Tak nie impregnowane
Drzwi zewnętrzne wymiar (cm)
90x194
Taras (m)
4,71x2,0
Powierzchnia tarasu (m2)
9,4
3x drzwi wewnętrzne wymiar (cm)
70x194
7xOkna wymiar (cm)
5szt 85x108, 2szt 67x70
Piętro (m)
4,71x6,75
Powierzchnia piętra (m2)
27,4
Schody
zabiegowe
Szczegóły montażu i transportu

Instrukcja montażu

do produktu jest dołączona czytelna instrukcja montażu, dzięki której domek można zmontować samodzielnie. Istnieje możliwość zlecenia montażu naszym fachowcom. Produkt dostępny „od ręki” jest wysyłany w ciągu 7 dni roboczych. W przypadku innej formy dostępności produktu termin jego wysyłki ustalamy z indywidualnie.

Wymiary opakowania/paczki:

Wysokość: x

Długość: x

Szerokość: x

Domki SODAS to
gwarancja jakości!
dbamy o najwyższą jakość usług i materiałów;
posiadamy doświadczoną ekipę specjalistów, którzy profesjonalnie zajmą się montażem;
współpracujemy ze sprawdzonymi, europejskimi producentami;
działamy kompleksowo - zapewniamy fachowe doradztwo w zakresie demontażu domku, przygotowania podłoża i montażu nowego domku;
dbamy o design i funkcjonalność;
do każdego Klienta podchodzimy indywidualnie.
Najczęściej zadawane pytania i odpowiedzi
  • - Dodaj produkt do koszyka w naszym sklepie internetowym i złóż zamówienie.

  • - Wyślij do nas maila z informacją o wybranym modelu domku oraz ewentualnych dodatkowych usługach, które Cię interesują.

  • - Złóż zamówienie osobiście w naszym biurze pod adresem: 05-074 Wielgolas Duchnowski, ul. Inżynierska 5.

Czas realizacji zależy od dostępności produktu:

- Domek dostępny na magazynie: Możesz odebrać go od ręki w godzinach 9:00-17:00, od poniedziałku do piątku.

- Domek z magazynu i gotowe podłoże: Czas realizacji wynosi od 2 do 8 tygodni.

- Domek na zamówienie: Czas realizacji może wynieść do 16 tygodni.

- Dostawa domku z magazynu: Realizacja trwa do 10 dni roboczych.

Podłoże może być wykonane w następujący sposób:

- Bloczki fundamentowe

- Płyta fundamentowa

- Płyta chodnikowa

- Kostka brukowa

Do każdego domku dołączamy szczegółowy schemat rozmieszczenia legarów wraz z instrukcją przygotowania podłoża.

Po montażu domek należy zaimpregnować 2-3 razy. Rekomendujemy impregnaty powłokotwórcze firmy Koopmans.

Nie oferujemy takich usług. Klient może zlecić je we własnym zakresie. Na życzenie możemy skontaktować się z wykonawcą, aby udzielić szczegółowych informacji technicznych.

Tak, oferujemy zakup domków na raty we współpracy z bankiem Credit Agricole. Wypełniamy wniosek i przesyłamy go do banku. Po pozytywnej ocenie zdolności kredytowej klienta przechodzimy do realizacji zamówienia.

Oczami Klienta
0.0
Liczba opinii: 0
Na razie nie dodano żadnej opinii.
Produkt dostępny

Piętrowy domek letniskowy IBIZA2 balik 88 mm - najwyższy standard w serii – maksymalna stabilność, bardzo dobra izolacja oraz wysokiej klasy stolarka okienna. To propozycja dla wymagających klientów, którzy oczekują jakości zbliżonej do budownictwa całorocznego. Inwestycja w trwałość, komfort i prestiż na lata.

125 000 zł

Montaż:
Nie
Nie
Tak (26 000 zł)
Podłoga:
Z podłogą 28mm
Z podłogą 28mm
Impregnacja ścian:
Nie
Nie
Zewnętrzna (3 300 zł)
Wewnętrzna (3 700 zł)
Dwustronna (6 500 zł)
Impregnacja podłogi:
-
Nie
Jednostronna (1 300 zł)
Dwustronna (1 700 zł)
Pokrycie dachu:
Nie
Nie
Gont czerwony (4 500 zł)
Gont zielony (4 500 zł)
Gont brązowy (4 500 zł)
Gont czarny (4 500 zł)
Papa wierzchniego krycia (3 500 zł)
Papa podkładowa na dach:
Nie
Nie
Tak (2 800 zł)
Rynny:
Nie
Nie
Tak (2 500 zł)
Ocieplenie podłogi:
Nie
Nie
Tak (2 600 zł)
Ocieplenie dachu:
Nie
Nie
Tak (7 500 zł)
Okiennice:
Nie
Nie
Tak (4 000 zł)
Drzwi:
Drzwi przeszklone
Drzwi przeszklone
Drzwi pełne (200 zł)
Domek letniskowy IBIZA2 5.0x7.0m 88mm
125 000 zł

Informacje dotyczące plików cookies

Ta witryna korzysta z własnych plików cookie, aby zapewnić Ci najwyższy poziom doświadczenia na naszej stronie . Wykorzystujemy również pliki cookie stron trzecich w celu ulepszenia naszych usług, analizy a nastepnie wyświetlania reklam związanych z Twoimi preferencjami na podstawie analizy Twoich zachowań podczas nawigacji.

Zarządzanie plikami cookies

O Cookies

Pliki cookie to niewielkie pliki tekstowe, które są zapisywane na komputerze lub urządzeniu mobilnym przez strony internetowe, które odwiedzasz. Służą do różnych celów, takich jak zapamiętywanie informacji o logowaniu użytkownika, śledzenie zachowania użytkownika w celach reklamowych i personalizacji doświadczenia przeglądania użytkownika. Istnieją dwa rodzaje plików cookie: sesyjne i trwałe. Te pierwsze są usuwane po zakończeniu sesji przeglądarki, podczas gdy te drugie pozostają na urządzeniu przez określony czas lub do momentu ich ręcznego usunięcia.